Price £530,000 New Instruction
  • 3 Bed House
  • Private Garden
  • Off Street Parking
  • Kitchen with Diner
  • NO CHAIN
  • Short Walking Distance To High St & Train Station
  • Local Shops Nearby
  • Many Bus Services
  • Excellent Schools

Seoul Estate Agents are delighted to present this beautifully maintained and deceptively spacious three-bedroom family home, ideally located on a desirable residential road in New Malden. Offered to the market with no onward chain, this property presents an excellent opportunity for families or buyers seeking a well-connected, move-in-ready home with future scope to extend (STPP).



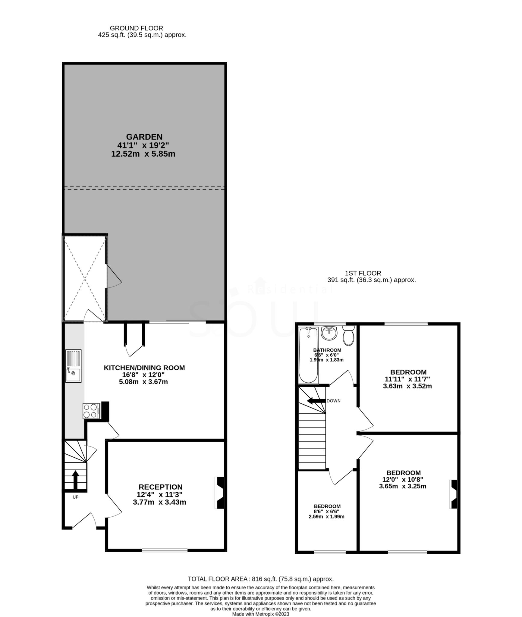
As you step through the front door, you are welcomed by a thoughtfully arranged layout that balances comfort and practicality. The ground floor features two well-defined reception rooms positioned to the right of the entrance hallway. The front-facing living room is bright and inviting a perfect space to relax, unwind, or entertain guests. Towards the rear, the second reception room serves ideally as a dining area and benefits from direct access to the garden-facing, semi open-plan kitchen. The kitchen is a standout feature, offering generous worktop space, modern cabinetry, and an integrated oven and hob, all enhanced by the convenience of an attached utility area. Upstairs, the first floor comprises three bedrooms, including two spacious doubles and a good-sized single room, all serviced by a smartly finished family bathroom with contemporary fittings and a window for natural ventilation. Each bedroom offers a quiet and comfortable environment, ideal for family members or working from home.



Externally, the home boasts a private rear garden measuring approximately 41 feet, ideal for summer entertaining, gardening, or outdoor play. The property sits on a controlled-parking residential road, ensuring a quieter street scene which no troubles for the property with off street parking.

This property enjoys an enviable location within the Burlington School catchment area, making it especially appealing for families.

The highly regarded Burlington Infant and Junior Schools are just a short walk away, while excellent private schooling options including Westbury House School and The Study School are also within easy reach. Local parks, shops, and transport links including New Malden station with swift trains to London Waterloo further enhance the property's appeal.



Council Tax
Royal Borough Of Kingston Upon Thames, Band D

Notice
Please note we have not tested any apparatus, fixtures, fittings, or services. Interested parties must undertake their own investigation into the working order of these items. All measurements are approximate and photographs provided for guidance only.

Floor Plan
EER Chart

The Energy-Efficiency Rating is a measure of a home's overall efficiency. The higher the rating, the more energy-efficient the home is, and the lower the fuel bills are likely to be.

Utility Supply Type
Electric Mains Supply
Gas Mains Supply
Water Mains Supply
Sewerage Mains Supply
Broadband Unknown
Telephone Unknown

Other Items Description
Heating Gas Central Heating
Garden/Outside Space No
Parking Yes
Garage No

Broadband Coverage Highest Available Download Speed Highest Available Upload Speed
Standard 8 Mbps 0.9 Mbps
Superfast 80 Mbps 20 Mbps
Ultrafast 1800 Mbps 1000 Mbps

Mobile Coverage Indoor Voice Indoor Data Outdoor Voice Outdoor Data
EE Likely Likely Enhanced Enhanced
Three Likely Likely Enhanced Enhanced
O2 Enhanced Enhanced Enhanced Enhanced
Vodafone Enhanced Enhanced Enhanced Enhanced

Broadband and Mobile coverage information supplied by Ofcom.


marker icon