Price £800,000 Available
  • 3 Bed Detached House Plus Fully Equipped Garden Studio
  • Large Open Plan Ground Floor
  • Fully Renovated To A Very High Specs
  • Downstairs WC
  • Family Bathroom With Walk in Shower
  • Master Bed With Separate Dressing Area
  • Landscaped Private Garden
  • Close to Local Amenities
  • NO ONWARDS CHAIN

**Stunning Detached Family Home Recently Renovated to Exceptional Standards**
** NO ONWARDS CHAIN**

This immaculately presented detached family home has been thoughtfully renovated to the highest specification, offering modern luxury and spacious living throughout.

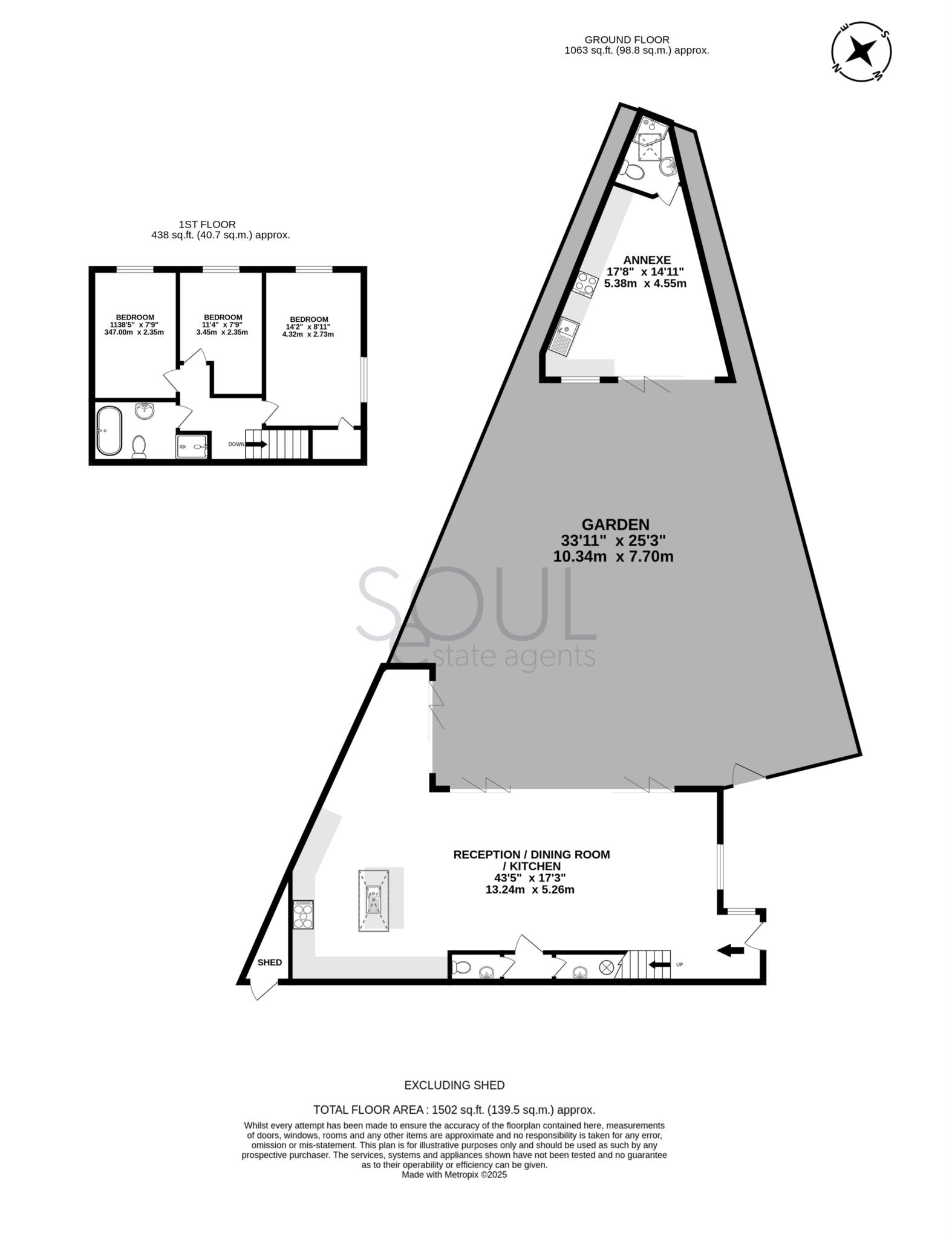
Ground Floor
- A bright and expansive open-plan living area, beautifully finished with premium materials.
- Fully fitted contemporary kitchen with quartz worktops featuring a stylish central island, perfect for entertaining.
- Elegant bi-folding doors, with built in blinds, seamlessly connecting the indoor space to a landscaped private garden.
- LED lighting throughout, accompanied with built in Yamaha ceiling speakers.
- Large double glazed skylight with electric blind
- Convenient downstairs WC for added practicality.

First Floor:
- Three generously sized bedrooms, providing ample space for family and guests.
- Luxurious family bathroom, designed with sophistication and comfort in mind.

Exterior & Additional Features:
- Fully equipped garden studio, self contained, with kitchen and bathroom, ideal for a home office or extra bedroom.
- Silicone rendered house with resin driveway.
- Boarded out loft with pull down ladder and lighting.
- Practical tool shed for extra storage.

Location Highlights:
- Moments from Worcester Park High Street, with its vibrant shops, cafes, and amenities.
- Close to Worcester Park Station for easy commuting.
- Situated within the catchment of excellent local schools.

A perfect blend of modern elegance, functionality, and prime location an exceptional family home not to be missed.



Council Tax
Sutton Council, Band D

Notice
Please note we have not tested any apparatus, fixtures, fittings, or services. Interested parties must undertake their own investigation into the working order of these items. All measurements are approximate and photographs provided for guidance only.

Floor Plan
EER Chart

The Energy-Efficiency Rating is a measure of a home's overall efficiency. The higher the rating, the more energy-efficient the home is, and the lower the fuel bills are likely to be.

Utility Supply Type
Electric Mains Supply
Gas Mains Supply
Water Mains Supply
Sewerage Mains Supply
Broadband Unknown
Telephone Unknown

Other Items Description
Heating Gas Central Heating
Garden/Outside Space No
Parking No
Garage No

Broadband Coverage Highest Available Download Speed Highest Available Upload Speed
Standard 14 Mbps 1 Mbps
Superfast 45 Mbps 8 Mbps
Ultrafast 5000 Mbps 5000 Mbps

Mobile Coverage Indoor Voice Indoor Data Outdoor Voice Outdoor Data
EE Enhanced Enhanced Enhanced Enhanced
Three Likely Likely Enhanced Enhanced
O2 Enhanced Likely Enhanced Enhanced
Vodafone Enhanced Enhanced Enhanced Enhanced

Broadband and Mobile coverage information supplied by Ofcom.


marker icon