Price £685,000 Available
  • Three Bedroom End Of Terrace Family Home
  • Sought-After Residential Location On Byron Avenue
  • Two Reception Rooms
  • Fully Fitted Kitchen With Dining Area
  • Two Double Bedrooms & One Single Bedroom
  • Modern Three Piece Family Bathroom
  • South West Facing Rear Garden
  • Useful Garden Storage Shed
  • Close To Motspur Park Station & Local Amenities
  • NO ONWARD CHAIN

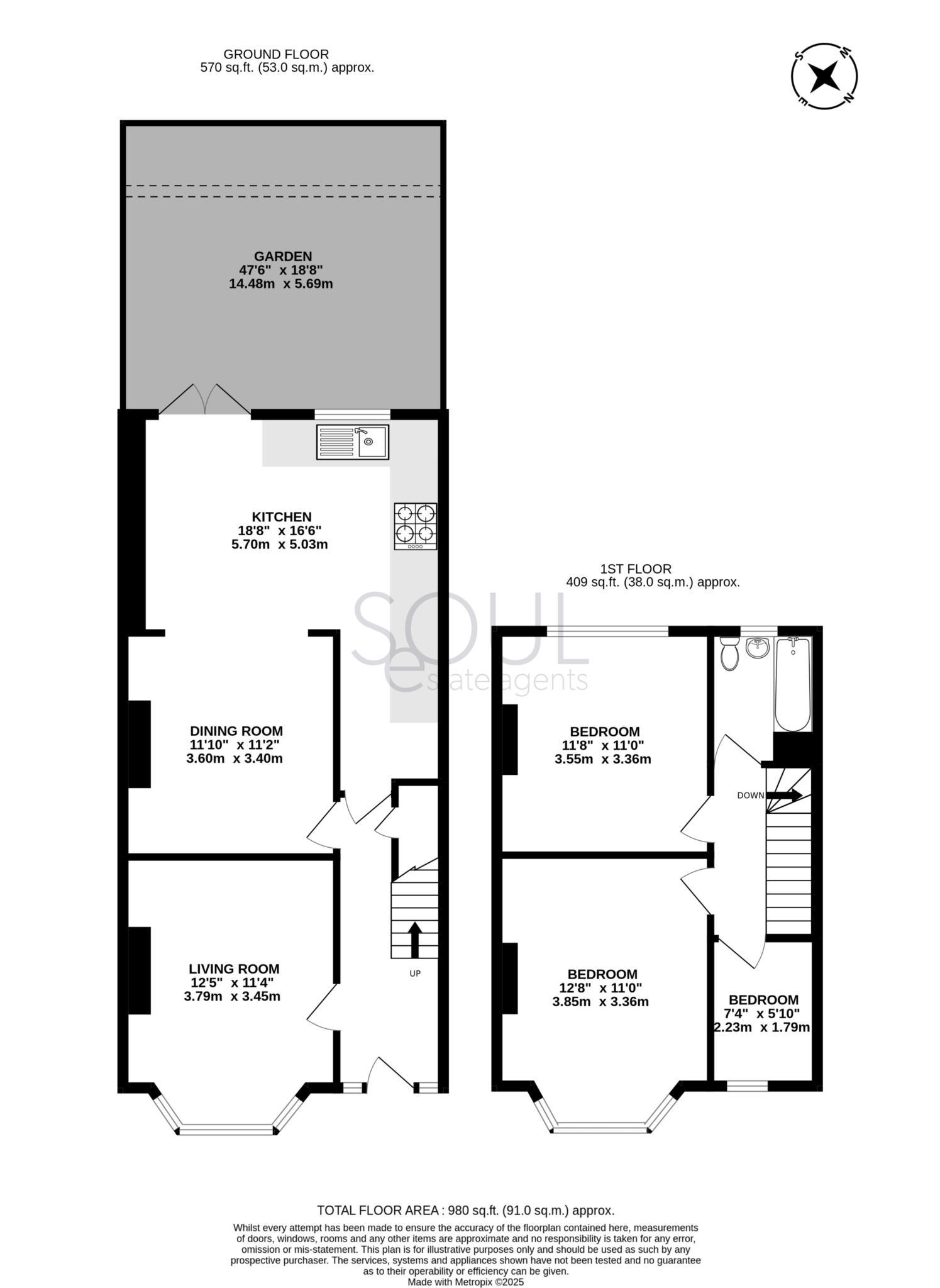
Seoul Estate Agents are delighted to present this well-presented three bedroom end of terrace family home, ideally located on the sought-after Byron Avenue, New Malden. Set within a peaceful residential area and conveniently close to Motspur Park Station, this property offers comfortable and well-balanced accommodation ideal for family living.

The ground floor comprises a bright and spacious front reception room, providing an excellent space for relaxing or entertaining. To the rear, there is a second reception/family room which connects seamlessly with the fully fitted kitchen with dining area, creating a practical and sociable layout for everyday family life.

On the first floor, the property offers two generous double bedrooms, a well-proportioned single bedroom, and a modern three piece family bathroom. The accommodation is well laid out and presented in good condition throughout, offering a home that is ready to move into while still allowing scope for personalisation.

Externally, the property benefits from a south west facing rear garden, which is of a good size and ideal for outdoor dining and entertaining. The garden also includes a shed providing useful additional storage.

Byron Avenue is a popular residential location, well regarded for its safety, family-friendly atmosphere and access to local amenities. Motspur Park Station is approximately 0.2 miles away, with local shops, supermarkets and well-regarded schools all within easy reach.

Offered to the market with NO ONWARD CHAIN, this property represents an excellent opportunity for families and buyers seeking a straightforward purchase in a well-established New Malden location.



Council Tax
London Borough of Merton, Band D

Notice
Please note we have not tested any apparatus, fixtures, fittings, or services. Interested parties must undertake their own investigation into the working order of these items. All measurements are approximate and photographs provided for guidance only.

Floor Plan
EER Chart

The Energy-Efficiency Rating is a measure of a home's overall efficiency. The higher the rating, the more energy-efficient the home is, and the lower the fuel bills are likely to be.

Utility Supply Type
Electric Mains Supply
Gas Mains Supply
Water Mains Supply
Sewerage Mains Supply
Broadband Unknown
Telephone Unknown

Other Items Description
Heating Gas Central Heating
Garden/Outside Space No
Parking Yes
Garage No

Broadband Coverage Highest Available Download Speed Highest Available Upload Speed
Standard 12 Mbps 1 Mbps
Superfast 80 Mbps 20 Mbps
Ultrafast 1800 Mbps 1000 Mbps

Mobile Coverage Indoor Voice Indoor Data Outdoor Voice Outdoor Data
EE Likely Likely Enhanced Enhanced
Three Likely Likely Enhanced Enhanced
O2 Enhanced Enhanced Enhanced Enhanced
Vodafone Enhanced Enhanced Enhanced Enhanced

Broadband and Mobile coverage information supplied by Ofcom.


marker icon