Price £465,000 New Instruction
  • Three bedroom terraced house
  • Front reception room
  • Separate dining room
  • Fitted kitchen
  • Separate toilet and shower
  • Private rear garden
  • Off-street parking

**NO OWARD CHAIN**
Seoul Estate Agents are pleased to offer this charming three bedroom terraced property in a highly sought after Morden location.



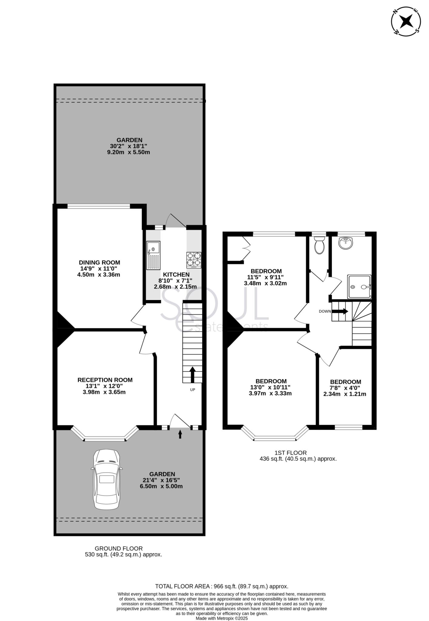
The ground floor comprises a front reception room, a rear dining room, and a kitchen, providing a practical and flexible living space.

Upstairs, there are three bedrooms, a separate toilet, and a showerroom.



Externally, the property benefits from a private rear garden and off street parking, offering both convenience and outdoor space.

The property requires a full update, idea for someone is seeking to add personal touch to the house.

Ideal for families or first time buyers, this home presents a comfortable living environment in a popular, family friendly neighbourhood with excellent access to local schools and transport links.



Council Tax
London Borough of Merton, Band E

Notice
Please note we have not tested any apparatus, fixtures, fittings, or services. Interested parties must undertake their own investigation into the working order of these items. All measurements are approximate and photographs provided for guidance only.

Floor Plan
EER Chart

The Energy-Efficiency Rating is a measure of a home's overall efficiency. The higher the rating, the more energy-efficient the home is, and the lower the fuel bills are likely to be.

Utility Supply Type
Electric Mains Supply
Gas Mains Supply
Water Mains Supply
Sewerage Mains Supply
Broadband Unknown
Telephone Unknown

Other Items Description
Heating Gas Central Heating
Garden/Outside Space Yes
Parking No
Garage No

Broadband Coverage Highest Available Download Speed Highest Available Upload Speed
Standard 4 Mbps 0.6 Mbps
Superfast 50 Mbps 8 Mbps
Ultrafast 5000 Mbps 5000 Mbps

Mobile Coverage Indoor Voice Indoor Data Outdoor Voice Outdoor Data
EE Likely Likely Enhanced Enhanced
Three Enhanced Enhanced Enhanced Enhanced
O2 Enhanced Likely Enhanced Enhanced
Vodafone Enhanced Enhanced Enhanced Enhanced

Broadband and Mobile coverage information supplied by Ofcom.


marker icon