Price £3,600 pcm New Instruction

Price £3,600 pcm - Available Now - Unfurnished


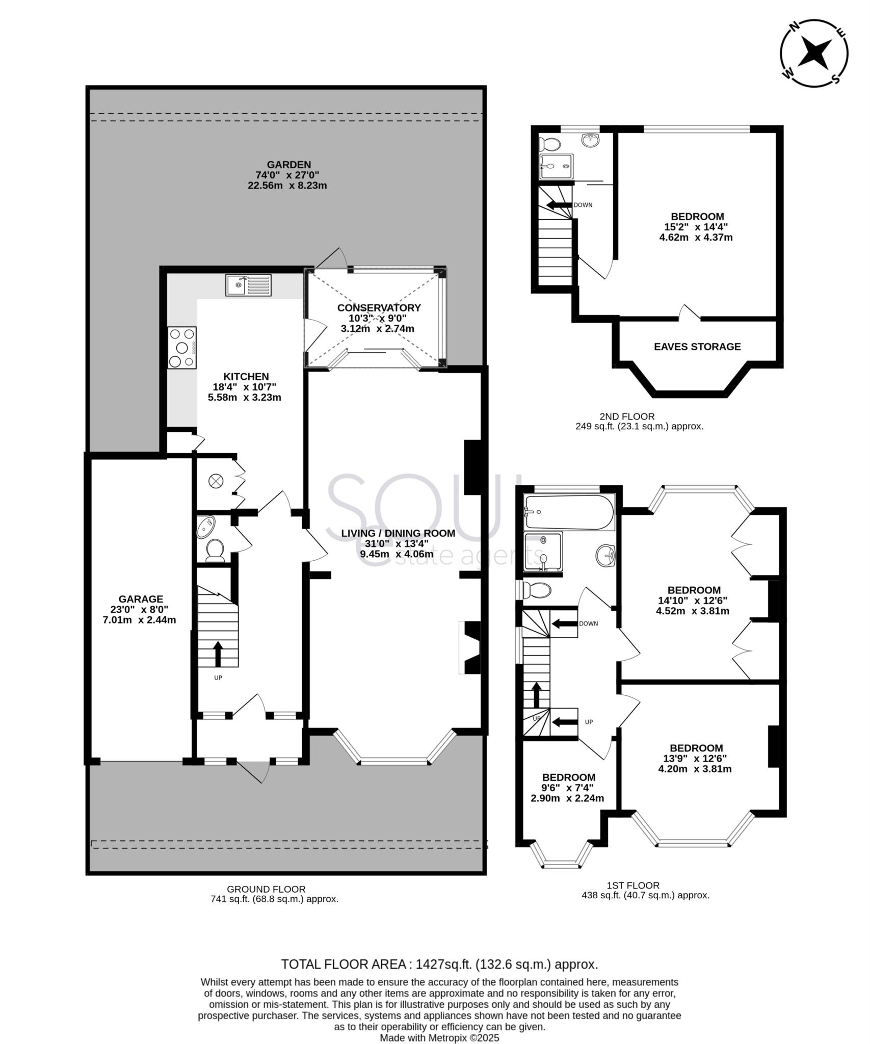
  • Spacious Three-Storey Four Bedroom Family Home
  • Large Through Reception/Living-Dining Room
  • Generous Fully Fitted Kitchen With Integrated Appliances
  • Conservatory Opening Onto Wide Rear Garden
  • Modern Family Bathroom With Bath & Separate Shower
  • Additional Second Floor Bedroom & Shower Room
  • Ground Floor WC
  • Garage (Approx. 7.1m x 2.4m) Plus Off-Street Parking
  • Peaceful & Safe Residential Area Close To Motspur Park Station
  • Convenient For Burlington Schools & Other Well-Regarded Local Schools

A spacious three-storey four bedroom family home situated in a peaceful residential area on West Barnes Lane, New Malden. The ground floor offers a large through reception arranged as a living and dining area, a generous fully fitted kitchen with integrated appliances, a conservatory opening onto a wide, well-maintained rear garden, and a convenient ground floor WC.

On the first floor there are three bedrooms and a modern family bathroom. The rear bedroom enjoys garden views and fitted wardrobes, the front bedroom benefits from an attractive bay window, and the smaller bedroom also has a window, making it a bright and comfortable space. The family bathroom is finished in a modern style, with a spacious shower area and a large bath.

The second floor provides an additional bedroom together with a contemporary shower room, offering flexible accommodation for families, guests or a home office. Overall, the house feels wide, bright and comfortable, making it an excellent choice for family living.

This property is located in a pleasant, safe and family-friendly area with a strong residential feel and good local community. Motspur Park Station is only 0.1 miles away, with New Malden and Worcester Park stations also within easy reach, providing convenient links into London. There are several local shops and food stores nearby, and well-regarded schools including Burlington Infant and Nursery School, Burlington Junior School, Sacred Heart Primary, Coombe Boys' School and Raynes Park High School are all within the local area.



Highly recommended for a viewing.




Deposit: £4,150.00

Minimum Tenancy : 12 months

Council Tax
Royal Borough Of Kingston Upon Thames, Band F

Notice
All photographs are provided for guidance only.

For properties in England, the Tenant Fees Act 2019 means that in addition to rent, lettings agents can only charge tenants the following permitted payments:

  • Holding deposit (to reserve a property) capped at no more than one week's rent
  • Security deposit capped at no more than five weeks' rent where the annual rent is less than £50,000 or six weeks' rent where the total annual rent is £50,000 or above
  • Payments to change the tenancy when requested by tenant, capped at £50, or reasonable costs incurred if higher
  • Payment to change of Sharer per replacement tenant, capped at £50, or reasonable costs incurred if higher
  • Payment associated with early termination of a tenancy, when requested by the tenant (capped at the landlord's loss or the agent's reasonably incurred costs)
  • Utilities, communication services (e.g. telephone, broadband), TV licence and Council Tax
  • Interest payment for the late payment of rent (up to 3% above Bank of England's annual percentage rate)
  • Reasonable costs for replacement of lost keys or other security devices
  • Contractual damages in the event of the tenant's default of the tenancy agreement
  • Any other permitted payment under the Tenant Fees Act 2019 If a tenant decides to rent a property through us in the name of a business or company the administration and reference fee will be charged.

SeOUL Residential is a member of The Property Ombudsman (TPO). This government approved redress scheme offers our clients and customers peace of mind that there is a free redress available in the unlikely event of an unresolved dispute involving our agency. SeOUL Residential is also a member of Client Money Protect (CMP) membership No. C0015963.

/// shape.found.thinks is the what3words address for the best entrance. what3words has given every 3 metre square in the world a unique combination of 3 random words.

Floor Plan
EER Chart

The Energy-Efficiency Rating is a measure of a home's overall efficiency. The higher the rating, the more energy-efficient the home is, and the lower the fuel bills are likely to be.

Utility Supply Type
Electric Mains Supply
Gas None
Water Mains Supply
Sewerage None
Broadband None
Telephone None

Other Items Description
Heating Not Specified
Garden/Outside Space No
Parking Yes
Garage No

Broadband Coverage Highest Available Download Speed Highest Available Upload Speed
Standard 6 Mbps 0.8 Mbps
Superfast 60 Mbps 14 Mbps
Ultrafast 1000 Mbps 100 Mbps

Mobile Coverage Indoor Voice Indoor Data Outdoor Voice Outdoor Data
EE Enhanced Enhanced Enhanced Enhanced
Three No Signal No Signal Enhanced Enhanced
O2 Enhanced Enhanced Enhanced Enhanced
Vodafone Enhanced Enhanced Enhanced Enhanced

Broadband and Mobile coverage information supplied by Ofcom.


marker icon