- Freehold Sale
- Commercial Building
- Heart of New Malden High Street
- E Class
- Ground Floor Unit Lease Due to Expire - Tenant Willing To Stay
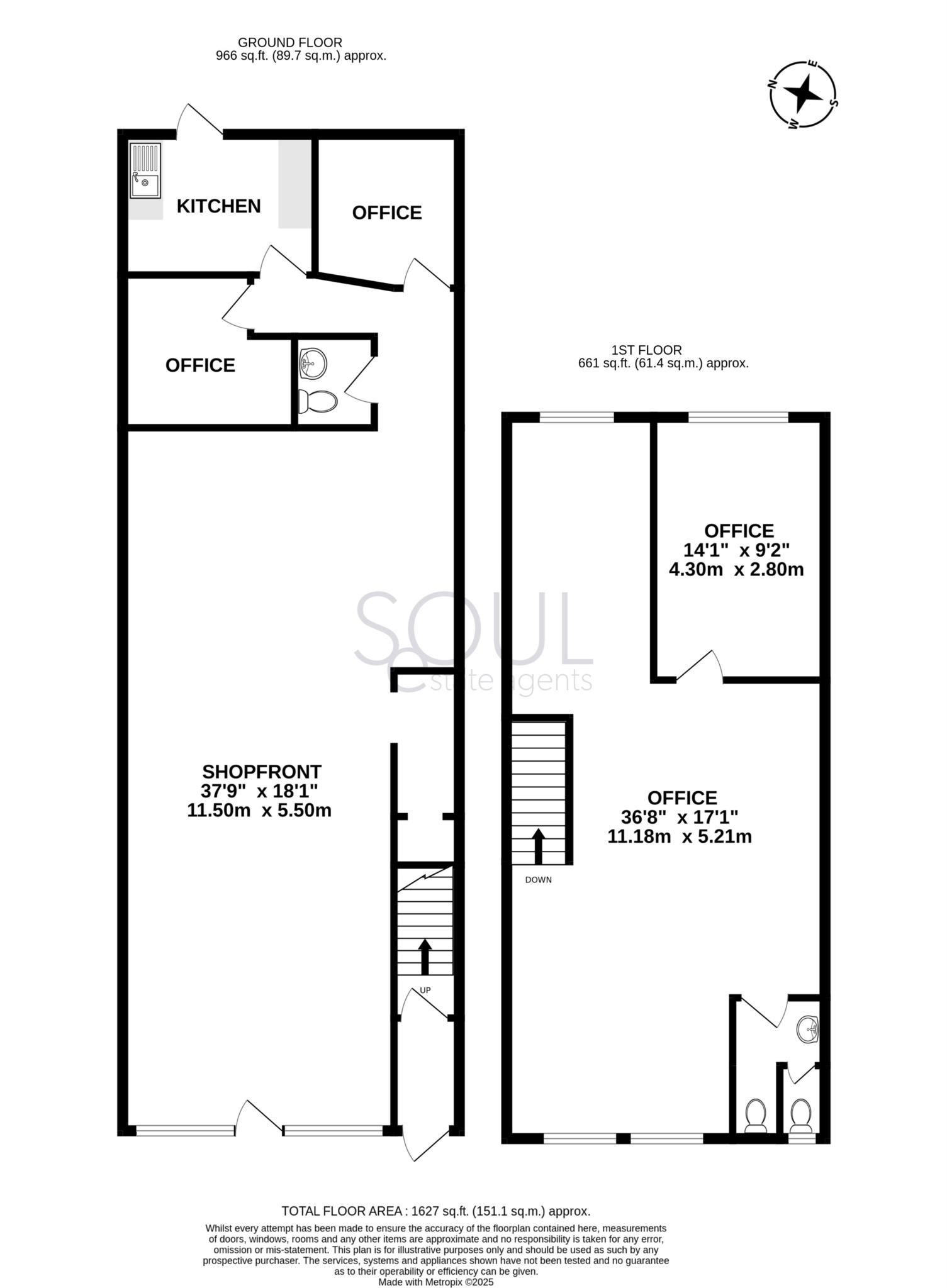
Seoul Estate Agents are pleased to offer this commercial freehold building for sale. located in the very heart of New Malden high street. Ground floor unit is currently trading as an well established opticians and 1st floor unit runs as a hair saloon.
Ground floor lease is due expiring, new lease can be negotiated or up to new owner's plans.
Viewing is highly recommended by appointment only
current rateble value:
Ground floor shop £21,000 pa
1st Floor shop £8,700 pa
Business Rates
Royal Borough Of Kingston Upon Thames
Notice
Please note we have not tested any apparatus, fixtures, fittings, or services. Interested parties must undertake their own investigation into the working order of these items. All measurements are approximate and photographs provided for guidance only.
| Utility |
Supply Type |
| Electric |
Mains Supply |
| Gas |
Mains Supply |
| Water |
Mains Supply |
| Sewerage |
Mains Supply |
| Broadband |
Unknown |
| Telephone |
Unknown |
| Other Items |
Description |
| Heating |
Not Specified |
| Garden/Outside Space |
No |
| Parking |
No |
| Garage |
No |
| Broadband Coverage |
Highest Available Download Speed |
Highest Available Upload Speed |
| Standard |
18 Mbps |
1 Mbps |
| Superfast |
Not Available |
Not Available |
| Ultrafast |
1800 Mbps |
220 Mbps |
| Mobile Coverage |
Indoor Voice |
Indoor Data |
Outdoor Voice |
Outdoor Data |
| EE |
Enhanced |
Enhanced |
Enhanced |
Enhanced |
| Three |
Likely |
Likely |
Enhanced |
Enhanced |
| O2 |
Enhanced |
Enhanced |
Enhanced |
Enhanced |
| Vodafone |
Likely |
Likely |
Enhanced |
Enhanced |
Broadband and Mobile coverage information supplied by Ofcom.